$2,200,000 for Sale
89 lake shore, grosse pointe farms, MI 48236
| Map View | Aerial View | Street View |
Property Description
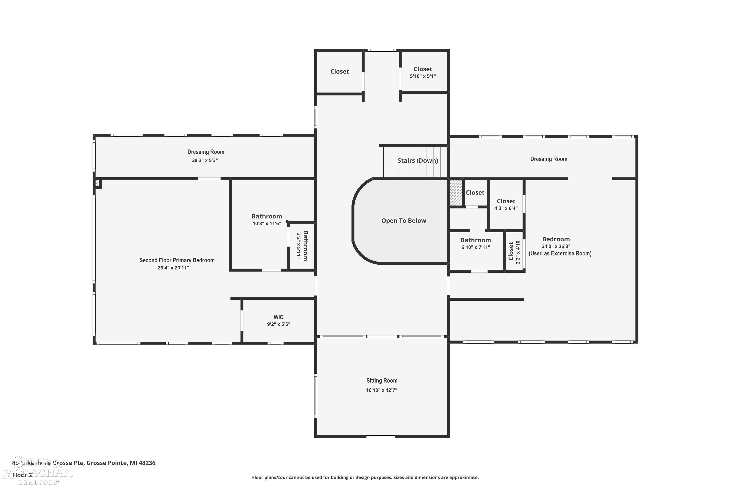
This exceptional Lake St. Clair estate offers panoramic waterfront views from nearly every room. Extensively renovated in 2019, this sophisticated residence blends timeless elegance with modern comfort, featuring a chef’s kitchen &comprehensive updates including roof, furnaces, central air, windows, doors, electric panel 2023,& new concrete drive 2025.The main level offers refined living & dining rooms, a dramatic floating staircase, private library, an open-concept floorplan, a sun-drenched solarium, a luxurious 1st floor primary suite, plus two additional en-suite bedrooms. The second floor features a second primary suite with sweeping lake views, a private office overlooking the water, & a generous bedroom currently configured as a full gym with its own bath. Outdoor living is highlighted by a newly designed lakeside patio and manicured landscaping with unobstructed views. Property includes 2nd vacant lakefront property id: 38 015 03 0012 004. Property is non homestead.
Waterfront / Water Access
Water Name: lake st. clair
Water Description: Lake Frontage, Sea Wall, Water View, Waterfront
Water Description: Lake Frontage, Sea Wall, Water View, Waterfront
General Information
City: grosse pointe farms
Post Office: grosse pointe farms
Schools: grosse pointe public schools
County: Wayne
Subdivision: burton warner sub
Acres: 0.62
Lot Dimensions: 116x223
Bedrooms:5
Bathrooms:6 (5 full, 1 half)
House Size: 6,346 sq.ft.
Acreage: 0.62 est.
Year Built: 1964
Property Type: Single Family
Style: Cape Cod
Features & Room Sizes
Bedroom 1: 19x16
Bedroom 2 : 18x14
Bedroom 3: 14x11
Bedroom 4: 20x18
Family Room: 15x15
Dinning Room: 21x15
Kitchen: 19x17
Livingroom: 28x14
Paved Road: City/County,Curbed,Paved Street
Garage: 3
Garage Description: Attached Garage, Electric in Garage, Side Loading Garage
Exterior: Brick
Exterior Misc: Lawn Sprinkler, Patio, Terrace
Bedroom 2 : 18x14
Bedroom 3: 14x11
Bedroom 4: 20x18
Family Room: 15x15
Dinning Room: 21x15
Kitchen: 19x17
Livingroom: 28x14
Paved Road: City/County,Curbed,Paved Street
Garage: 3
Garage Description: Attached Garage, Electric in Garage, Side Loading Garage
Exterior: Brick
Exterior Misc: Lawn Sprinkler, Patio, Terrace
Fireplaces: Yes
Fireplace Description: FamRoom Fireplace, Gas Fireplace, LivRoom Fireplace
Basement: Yes
Basement Description: Block
Foundation : Basement
Appliances: Dishwasher, Dryer, Humidifier, Microwave, Range/Oven, Refrigerator, Washer
Cooling: Central A/C
Heating: Forced Air
Fuel: Natural Gas
Waste: Public Sanitary
Watersource: Public Water
Fireplace Description: FamRoom Fireplace, Gas Fireplace, LivRoom Fireplace
Basement: Yes
Basement Description: Block
Foundation : Basement
Appliances: Dishwasher, Dryer, Humidifier, Microwave, Range/Oven, Refrigerator, Washer
Cooling: Central A/C
Heating: Forced Air
Fuel: Natural Gas
Waste: Public Sanitary
Watersource: Public Water
Tax, Fees & Legal
Est. Summer Taxes: $20,636
Est. Winter Taxes: $28,282
Est. Winter Taxes: $28,282
Map

Information provided by East Central Association of REALTORS® Copyright 2026
All information provided is deemed reliable but is not guaranteed and should be independently verified. Participants are required to indicate on their websites that the information being provided is for consumers' personal, non-commercial use and may not be used for any purpose other than to identify prospective properties consumers may be interested in purchasing. Listing By: Janet H. Ridder of Sine & Monaghan LLC, Phone: 313-884-7000
(810) 577-8496
Call Janice Stuckey for more information about this property.
Ask me about this property
|
Listings Presented by:
Janice Stuckey
Call:
(810) 577-8496 Office: (810) 733-3333 |
This Single-Family Home located at
is currently for sale. This property is listed for $2,200,000.
89 lake shore
has 5 bedrooms, approximately 6,346 square feet.
This home is in the grosse pointe public schools school district and has a lot size of 116x223 with 0.62 acres and was built in 1964.
89 lake shore is in grosse pointe farms and in ZIP Code 48236 area.
89 lake shore, grosse pointe farms MI, 48236
For Sale | $2,200,000
| 5 Bed, 6 Bath | 6,346 Sq Ft
MLS ID mrsmi50200179
If you have any question about this property or any others, please don't hesitate to contact me.





